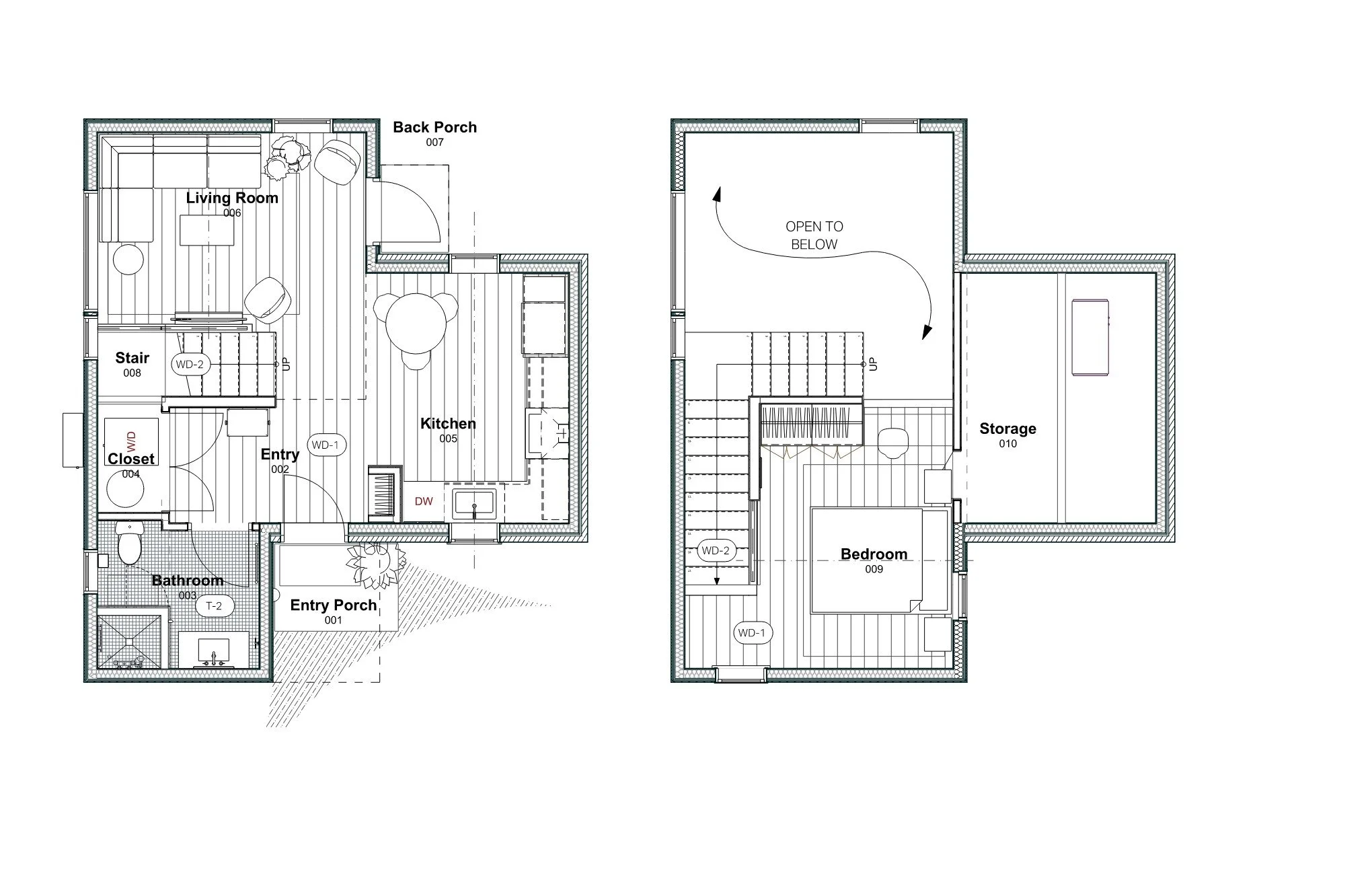
Woodwest ADU

750 sf accessory dwelling unit in the Woodwest neighborhood of Fort Collins, CO. Our experience living in and designing small living spaces ensures we make the most of a compact footprint. Finding volume and focal points are key to making small spaces feel generous.

construction to start June 2026 c/o Entheos Builders